概况
项目位于海湾入口处
宅基地靠近海边且地势较高
站在院子里便可俯瞰海景
可谓梦寐以求的一线海景房
业主为巴西华侨
常年在外
此次回家翻建老宅
一为家中父母有个舒适养老之所
二是几位兄弟在城里均有置业
而乡下却无房屋导致下一代孩子之间
感情越来越疏远
缺少羁绊
故希望通过此次翻建老宅
希望逢年过节带小孩回家
能有个相聚的场所
培养下一代的感情
把乡愁留住
背景
△二层观海视角
观海效果极佳,得天独厚的一线海景房。
效果

△人视图
宅基地本身占地仅五十多平,二层以上通过两面出挑,获得更多建筑面积,满足居住需求。,

△人视图
墙面色彩搭配选用黑、白、灰为基调,空间装饰多采用简洁硬朗的直线条。反映出现在人追求简单生活的居住要求,更迎合新中式内敛、质朴的设计风格。
居住与度假

△鸟瞰图
房屋定位为过年过节,回家团圆居住,除满足居住功能,兼顾度假休闲娱乐。增进兄弟间感情。
流动空间

△露台设计
通过室外楼梯串联,将三四五层空间联通,让空间流动,希望在小空间里,通过设计手法,将感知空间放大,将时间放缓,避免单调无趣的体验。

△露台设计
层层退台,每层都有观海平台

△鸟瞰图
平面功能

△一层平面图

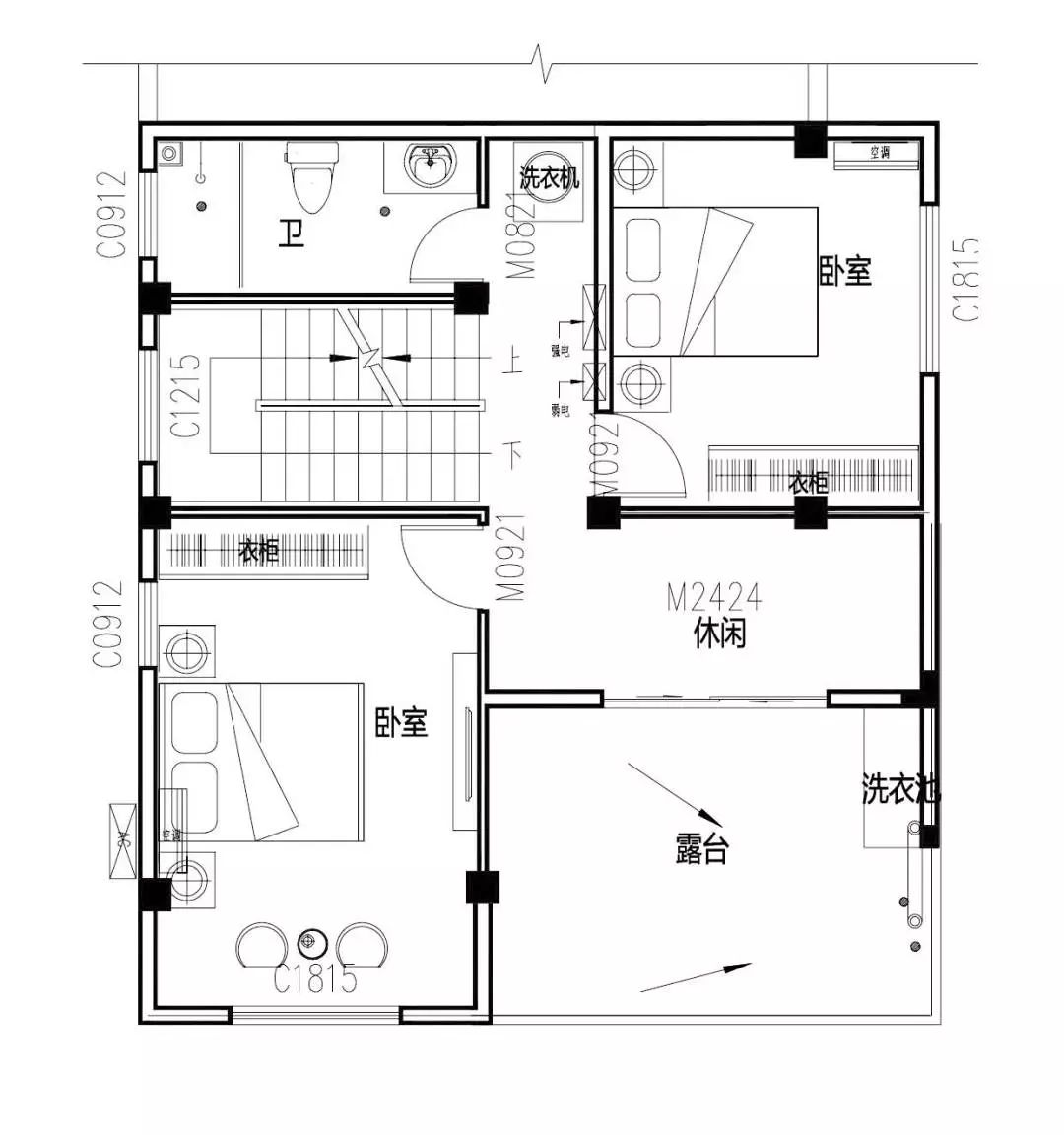
△二层平面图

△三层平面图
过程方案展示

△过程方案一

△过程方案一

让家的梦想变简单
期待与你合作,欢迎联系我们
国风•观云居——福建陈总五层别墅设计
图纸编号 | FH-5f-25
房屋尺寸 | 30*20
湖北蔡总别墅设计
图纸编号 | FH-4F-45
房屋尺寸 | 17*17
雅园——南宁覃府
图纸编号 | FH-4F-46
房屋尺寸 | 15*20
民国风别墅--漳州张府
图纸编号 | FH-4F-14
房屋尺寸 | 11*14
福州林府——3层中式别墅设计
图纸编号 | FH-3F-26
房屋尺寸 | 16*15
三层欧式轻奢别墅---漳州张府
图纸编号 | FH-3F-40
房屋尺寸 | 13*12
国风雅颂——河南梁府三层新中式别墅
图纸编号 | FH-3F-42
房屋尺寸 | 15*12
4层新中式轻奢别墅
图纸编号 | FH-4F-42
房屋尺寸 | 12*16
五层空中花园别墅---莆田郑宅
图纸编号 | FH-5F-4
房屋尺寸 | 11*14