效果展示

△鸟瞰图
主入口设置在西侧,东侧两间设计通高大客厅,别墅简欧风格,正立面局部运用石材,简洁大气,

△人视图
大露台、大阳台,可观海景,冬天白天可在这里晒太阳,夏天晚上可吹风乘凉。

△人视图
屋顶双重檐口设计,简单大方,彰显品质,同时增加屋顶阁楼利用率

△人视图
沿村道透视,品质不输城里别墅,农村拥有自己的一片天地

△侧立面设计
侧面门窗比例经过详细推敲,简约优雅而耐看。

△入口透视图
正面透视,细部处理,精巧犀利,看得出设计师的用心做设计
平面功能

△一层平面图
一层更多考虑对外接待及家人交流娱乐功能,考虑空间开放性,两层通高客厅设计,大气进线品质,与餐厅联通,南北通透,弧形楼梯联通楼上楼下,增加互动。

△一层平面图

△二层平面图
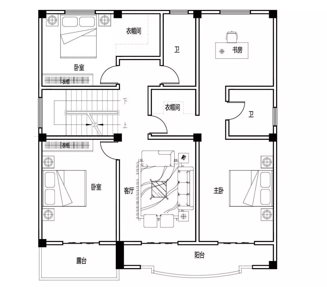
二层设置三个卧室,一客厅考虑与一层客厅互动,楼上楼下,尽在眼里,这才是家的温暖。

△三层平面图
三层设置两个次卧室一个主卧,一起居厅,主卧与书房连通,南北通透,主卧内配置衣帽间,大卫生间,,南北贯通,拥有自己的小天地。

△四层平面图
四层多功能厅设置,满足现代人影音,健身需求,大露台、阳台设置一览美丽海景

呈现最美乡村自建房
期待与你合作,欢迎联系我们
国风•观云居——福建陈总五层别墅设计
图纸编号 | FH-5f-25
房屋尺寸 | 30*20
湖北蔡总别墅设计
图纸编号 | FH-4F-45
房屋尺寸 | 17*17
雅园——南宁覃府
图纸编号 | FH-4F-46
房屋尺寸 | 15*20
民国风别墅--漳州张府
图纸编号 | FH-4F-14
房屋尺寸 | 11*14
福州林府——3层中式别墅设计
图纸编号 | FH-3F-26
房屋尺寸 | 16*15
三层欧式轻奢别墅---漳州张府
图纸编号 | FH-3F-40
房屋尺寸 | 13*12
国风雅颂——河南梁府三层新中式别墅
图纸编号 | FH-3F-42
房屋尺寸 | 15*12
4层新中式轻奢别墅
图纸编号 | FH-4F-42
房屋尺寸 | 12*16
五层空中花园别墅---莆田郑宅
图纸编号 | FH-5F-4
房屋尺寸 | 11*14