效果展示
履迹相承 ,融汇中西的民国风格建筑。

△人视图
以“西为体,中为用”为导向,即西式建造体系+中式表达元素。将中式元素融入西式建造逻辑中,中西合璧,兼容并包,建立起广泛而又极具亲和力的建筑气质。

△人视图

△正立面图

△大门视图

△入口透视

△庭院设计

△大门对景影壁设计。

△后院设计
小小一方庭院,自己的一方天地。

△整体鸟瞰图

△整体鸟瞰图

△檐口细部

△门廊纹样
宝相花纹是隋唐时期出现的一种纹样。早期的宝相花纹形式较简单,多采用双层结构,内层为抽象化的莲瓣纹或牡丹纹,外层穿插其他纹样,并通过米字形的构图原则使得纹样对称、均齐,富有简洁、抽象和空灵之美。
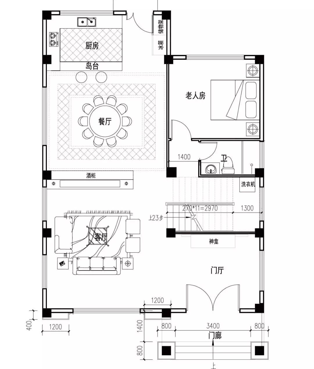
平面功能

△一层平面图

△二层平面图

△三层平面图

△四层平面图
过程方案展示

△过程方案一
此方案为业主前期较为满意方案,然后因家中长辈更倾向欧式风格,故方案改为偏欧式风格。

△过程方案一

让家的梦想变简单
期待与你合作,欢迎联系我们

方宅公众号
一起寻找最美自建别墅
如果你想盖一所自己的房子
告诉【方宅】你的需求
我们将提供专业设计服务

设计客户微信号
让你的家梦想变简单
国风•观云居——福建陈总五层别墅设计
图纸编号 | FH-5f-25
房屋尺寸 | 30*20
湖北蔡总别墅设计
图纸编号 | FH-4F-45
房屋尺寸 | 17*17
雅园——南宁覃府
图纸编号 | FH-4F-46
房屋尺寸 | 15*20
民国风别墅--漳州张府
图纸编号 | FH-4F-14
房屋尺寸 | 11*14
福州林府——3层中式别墅设计
图纸编号 | FH-3F-26
房屋尺寸 | 16*15
三层欧式轻奢别墅---漳州张府
图纸编号 | FH-3F-40
房屋尺寸 | 13*12
国风雅颂——河南梁府三层新中式别墅
图纸编号 | FH-3F-42
房屋尺寸 | 15*12
4层新中式轻奢别墅
图纸编号 | FH-4F-42
房屋尺寸 | 12*16
五层空中花园别墅---莆田郑宅
图纸编号 | FH-5F-4
房屋尺寸 | 11*14