项目概况
一方小院,自有天地
但始终喜欢乡村的生活
种菜养花养鱼
有个自己的小院子
同时供养父母
安享晚年
一村人家,几缕炊烟,
一畦菜地,几道篱笆。
有个属于自己的院子,

项目背景

△宅基卫星图

△宅基地照片
宅基地现状为农田,周边为遮挡,周边大部分为农田视野极为开阔。
设计理念

业主喜欢江南园林式格调的建筑,同时希望建筑以先到简洁为主。
效果展示

△鸟瞰图
提炼中式建筑符号作为母题,以白墙灰屋顶为主色调,在承接传统民居文化的核心要素的同时,充分运用现代手法,将传统生活的审美意境与现代生活方式实现有机结合。

△人视图
建筑的基调是柔和的灰点缀以柔和的白,局部点缀沉稳的木色——除了在材质上合乎中式的逻辑以外,干净、淡泊、平和是其精神上的主题。

△人视图
继承了中式建筑的理念精髓。对具有象征意义和实用功能的传统建筑细节进行了灵活的演变和继承,如用钢骨结构和混凝土框架结构更新木结构;用大面积的连续玻璃幕墙替换木排门、木连门和折叠屏风;重新演变马头墙、山墙、游廊、瓦当等具有象征意义和实用功能的传统建筑细节;通过半通透型院墙和篱笆与外景呼应,形成虚实衬托

△人视图

△侧立面视图

△入口视图

△庭院视图
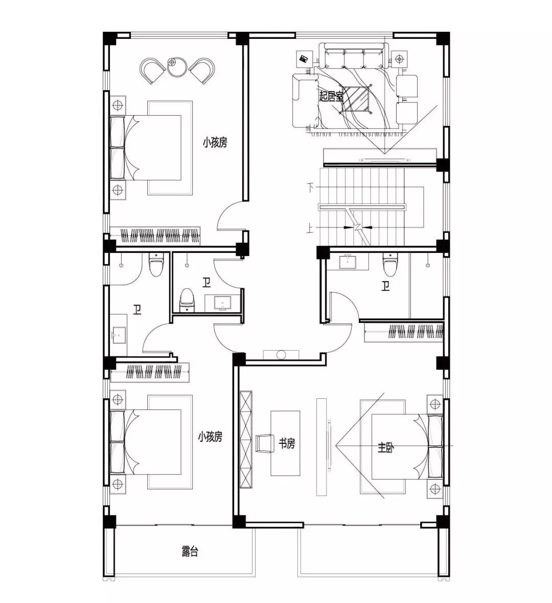
平面功能

△一层平面图

△二层平面图

△三层平面图

△四层平面图

让家的梦想变简单
期待与你合作,欢迎联系我们

方宅公众号
一起寻找最美自建别墅
如果你想盖一所自己的房子
告诉【方宅】你的需求
我们将提供专业设计服务

设计客户微信号
让你的家梦想变简单
国风•观云居——福建陈总五层别墅设计
图纸编号 | FH-5f-25
房屋尺寸 | 30*20
湖北蔡总别墅设计
图纸编号 | FH-4F-45
房屋尺寸 | 17*17
雅园——南宁覃府
图纸编号 | FH-4F-46
房屋尺寸 | 15*20
民国风别墅--漳州张府
图纸编号 | FH-4F-14
房屋尺寸 | 11*14
福州林府——3层中式别墅设计
图纸编号 | FH-3F-26
房屋尺寸 | 16*15
三层欧式轻奢别墅---漳州张府
图纸编号 | FH-3F-40
房屋尺寸 | 13*12
国风雅颂——河南梁府三层新中式别墅
图纸编号 | FH-3F-42
房屋尺寸 | 15*12
4层新中式轻奢别墅
图纸编号 | FH-4F-42
房屋尺寸 | 12*16
五层空中花园别墅---莆田郑宅
图纸编号 | FH-5F-4
房屋尺寸 | 11*14