项目概况
中国传统庭院讲究意境的创造
尊崇理想美的寄托
因此,融庭在设计中
拾起昔日庭院的情怀
与现代别墅生活融合
演绎成居住者心灵的桃花源
让久困与喧嚣的人们
回归大自然,欣享闲适雅致
宁静致远的生活
业主要求别墅以中式风格
同时要有传统的院落空间

项目背景

△宅基卫星图

△宅基地现状照片
宅基地有2.5亩,面宽25米,进深有60多米,而业主只想盖一栋3层别墅,别墅不需要太大,但要有院子,宁静舒适的院子
设计理念
西为体,中为用

绘画者:郎世宁(1688—1766)意大利人,宫廷画家,历任康、雍、乾三朝,在中国从事绘画达50多年。
曾参加圆明园西洋楼的设计工作,从那时起西方建筑思想正逐步渗入到中式传统建筑体系中。
效果展示
三进门第礼序,彰显大宅之尊

△整体鸟瞰图
古代宫廷贵胄、望族府邸,
多采用三进式格局
一进大门、二进儀门、三进宅门
以三进宅院、层层递进的门第秩序
彰显出传统的中国建筑礼序
其三进式空间营造的深宅大院及礼仪规制
代表了对中国建筑历史和文化的传承与开拓
更是完美演绎了中国望族的大宅之尊

△一进山水院落
进大门第一个院落,
院落进深只有9米
院落被水景分成东西两个小院落
耳边似乎传来远处缥缈的渔歌之声
以山水为主题
营造“鸟鸣山更幽,蝉噪林逾静”的意境

△一进大门

△一进庭院景观

△二进夏木院落
芳菲歇去何须恨,夏木阴阴正可人
夏木庭院,以‘浪淘沙’石材铺就地面
沉香米黄干挂墙面
围合出干净通透的方正空间
中轴整齐对植十棵精心挑选的丛生紫薇
芳草掩映间,一窥诗意生活

△二进庭院景观

△二进庭院景观

△三进满庭芳
“满庭芳”取自宋代词牌名
因“满庭芳草易黄昏”而得名
满庭遍植当季花草
步行其间叶影婆娑,花香四溢

△三进庭院景观

△人视图
主体建筑设计

△人视图

△背立面透视图

△人视图

△侧立面

△主入口立面
细部设计

△大门设计

△开门见画,以山石花木构画,一来可体现屋主的涵养,二则可缓和进门后的仓促感,三从风水上进门见红(喜),好运相伴,喜气洋洋。

△抱鼓石
抱鼓石是中国宅门"非贵即富"的门第符号,是最能标志屋主等级差别和身份地位的装饰艺术小品;

万字纹,又称为万字拐、万不断、万字曲水等,是一种中国传统文化中具有吉祥意义的几何图案。
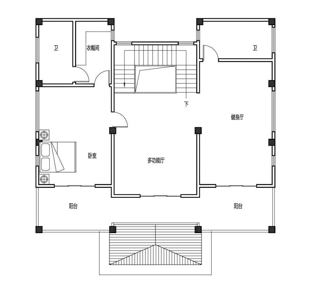
平面功能

△一层平面图

△二层平面图

△三层平面图

呈现最美乡村自建房
期待与你合作,欢迎联系我们

方宅公众号
呈现最美乡村自建房
如果你想盖一所自己的房子
告诉【方宅】你的需求
我们将提供专业设计服务

设计客户微信号
让你的家梦想变简单
国风•观云居——福建陈总五层别墅设计
图纸编号 | FH-5f-25
房屋尺寸 | 30*20
湖北蔡总别墅设计
图纸编号 | FH-4F-45
房屋尺寸 | 17*17
雅园——南宁覃府
图纸编号 | FH-4F-46
房屋尺寸 | 15*20
民国风别墅--漳州张府
图纸编号 | FH-4F-14
房屋尺寸 | 11*14
福州林府——3层中式别墅设计
图纸编号 | FH-3F-26
房屋尺寸 | 16*15
三层欧式轻奢别墅---漳州张府
图纸编号 | FH-3F-40
房屋尺寸 | 13*12
国风雅颂——河南梁府三层新中式别墅
图纸编号 | FH-3F-42
房屋尺寸 | 15*12
4层新中式轻奢别墅
图纸编号 | FH-4F-42
房屋尺寸 | 12*16
五层空中花园别墅---莆田郑宅
图纸编号 | FH-5F-4
房屋尺寸 | 11*14