项目概况
业主为海外华侨
在外奋斗打拼20年
也算小有成就
但在国外
心里总觉得缺少了些儿时家的温暖
于是与大多数福建华侨类似
赚钱回家起大厝
在那生养自己的家乡
盖一栋属于自己的房子
一为供养父母养老
等到自己老了
也能落叶归根

项目背景

△宅基卫星图

△宅基地现状照片
宅基地地势平坦,西侧邻居村道,其他三面均为邻居家房屋。

△业主房型意向

△业主房型意向
业主本人喜欢简约清新别墅风格,有点乡村味,让人可以放松心情,悠哉享受生活。不喜欢大气奢华。
效果展示

△人视图
主墙面为采用米黄色加上真石漆的点缀,突显建筑的亲和力,文化感。打造具有典雅、雍容与美感并存乡野别墅。

△入口透视

△入口透视

△鸟瞰图

△鸟瞰图
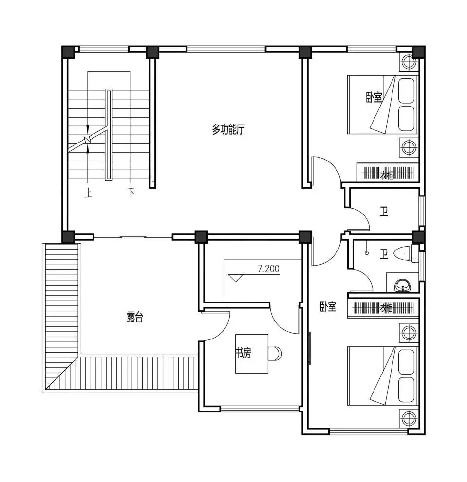
平面功能

△一层平面图

△二层平面图

△三层平面图

呈现最美乡村自建房
期待与你合作,欢迎联系我们

方宅公众号
呈现最美乡村自建房
如果你想盖一所自己的房子
告诉【方宅】你的需求
我们将提供专业设计服务

设计客户微信号
让你的家梦想变简单
国风•观云居——福建陈总五层别墅设计
图纸编号 | FH-5f-25
房屋尺寸 | 30*20
湖北蔡总别墅设计
图纸编号 | FH-4F-45
房屋尺寸 | 17*17
雅园——南宁覃府
图纸编号 | FH-4F-46
房屋尺寸 | 15*20
民国风别墅--漳州张府
图纸编号 | FH-4F-14
房屋尺寸 | 11*14
福州林府——3层中式别墅设计
图纸编号 | FH-3F-26
房屋尺寸 | 16*15
三层欧式轻奢别墅---漳州张府
图纸编号 | FH-3F-40
房屋尺寸 | 13*12
国风雅颂——河南梁府三层新中式别墅
图纸编号 | FH-3F-42
房屋尺寸 | 15*12
4层新中式轻奢别墅
图纸编号 | FH-4F-42
房屋尺寸 | 12*16
五层空中花园别墅---莆田郑宅
图纸编号 | FH-5F-4
房屋尺寸 | 11*14