效果展示

△人视图
房屋设计以简练的建筑语言,简欧风格,外墙采用米色花岗岩,典雅而大气,外廊、阳台、露台的巧妙设计,营造多层次交流空间,空间层层变化,简约大气。

△人视图
运用现代空间设计和当代建筑,结合当地特色加以点缀,方圆的巧妙结合,线条的粗细变化,立柱的点缀,细节处见精品。

△人视图
欧式柱廊运用,增加立面虚实变化。

△人视图

△鸟瞰图

△正立面图

△大门设计
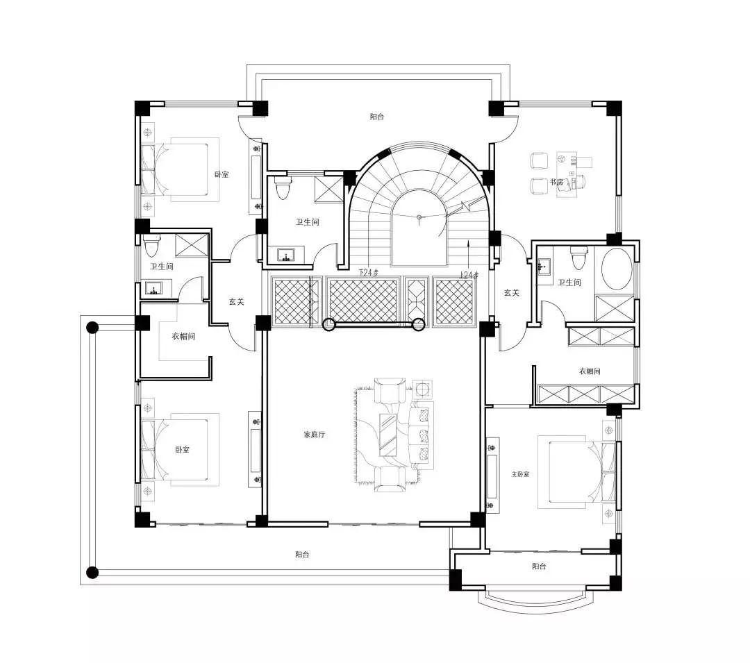
平面功能

△一层平面图

△二层平面图

△三层平面图

△四层平面图

△五层平面图
过程方案展示

△过程方案一

△过程方案一

让家的梦想变简单
期待与你合作,欢迎联系我们

方宅公众号
一起寻找最美自建别墅
如果你想盖一所自己的房子
告诉【方宅】你的需求
我们将提供专业设计服务

设计客户微信号
让你的家梦想变简单
国风•观云居——福建陈总五层别墅设计
图纸编号 | FH-5f-25
房屋尺寸 | 30*20
湖北蔡总别墅设计
图纸编号 | FH-4F-45
房屋尺寸 | 17*17
雅园——南宁覃府
图纸编号 | FH-4F-46
房屋尺寸 | 15*20
民国风别墅--漳州张府
图纸编号 | FH-4F-14
房屋尺寸 | 11*14
福州林府——3层中式别墅设计
图纸编号 | FH-3F-26
房屋尺寸 | 16*15
三层欧式轻奢别墅---漳州张府
图纸编号 | FH-3F-40
房屋尺寸 | 13*12
国风雅颂——河南梁府三层新中式别墅
图纸编号 | FH-3F-42
房屋尺寸 | 15*12
4层新中式轻奢别墅
图纸编号 | FH-4F-42
房屋尺寸 | 12*16
五层空中花园别墅---莆田郑宅
图纸编号 | FH-5F-4
房屋尺寸 | 11*14