设计意向

初步与业主沟通后找到意向图,后现代大师罗伯特斯特恩的别墅,基本接近业主所想要的感觉。
效果展示

△鸟瞰图
注重材料的自然本色,注重对外部自然的理解和尊重。在传统的舒展平面、缓坡屋顶等基本形式上,增加弧形窗、外廊,落地大窗等现代建筑手法,使建筑既能体现典雅朴素理念,彰显别墅的奢华品质。

△人视图
主墙面为石材结合木质铝合金窗点缀西班牙小瓦,增加建筑的亲和力。低调奢华,同自然融为一体。散发着欧式典雅风韵。

△鸟瞰图

△人视图

△侧立面图

△正立面图

△细部设计

△大门设计
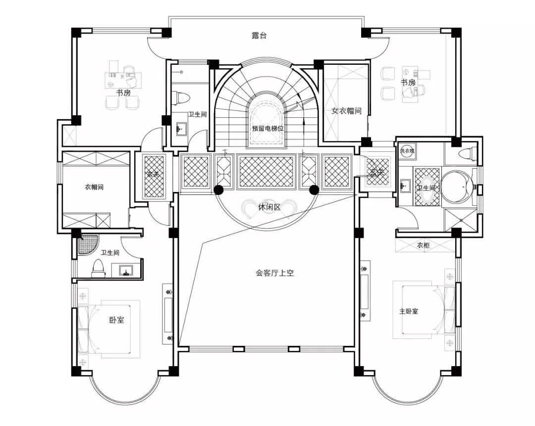
平面功能

△一层平面图

△二层平面图

△三层平面图

△四层平面图

△五层平面图
过程方案展示

△过程方案一

△过程方案一

让家的梦想变简单
期待与你合作,欢迎联系我们

方宅公众号
一起寻找最美自建别墅
如果你想盖一所自己的房子
告诉【方宅】你的需求
我们将提供专业设计服务

设计客户微信号
让你的家梦想变简单
国风•观云居——福建陈总五层别墅设计
图纸编号 | FH-5f-25
房屋尺寸 | 30*20
湖北蔡总别墅设计
图纸编号 | FH-4F-45
房屋尺寸 | 17*17
雅园——南宁覃府
图纸编号 | FH-4F-46
房屋尺寸 | 15*20
民国风别墅--漳州张府
图纸编号 | FH-4F-14
房屋尺寸 | 11*14
福州林府——3层中式别墅设计
图纸编号 | FH-3F-26
房屋尺寸 | 16*15
三层欧式轻奢别墅---漳州张府
图纸编号 | FH-3F-40
房屋尺寸 | 13*12
国风雅颂——河南梁府三层新中式别墅
图纸编号 | FH-3F-42
房屋尺寸 | 15*12
4层新中式轻奢别墅
图纸编号 | FH-4F-42
房屋尺寸 | 12*16
五层空中花园别墅---莆田郑宅
图纸编号 | FH-5F-4
房屋尺寸 | 11*14