效果展示
红砖本色,自然朴素

△人视图
建筑采用自然的红砖立面,表现质朴本色,体现乡村特色,正面局部石材的运用,彰显品质。

△人视图
从底层到屋顶设计一气呵成,没有多余动作,设计师反复推敲,比例严瑾,细节拿捏准确,而得到的成果,这也正是得欧式建筑设计之精髓。

△正立面图

△庭院设计


△庭院设计

△门廊纹样
平面功能

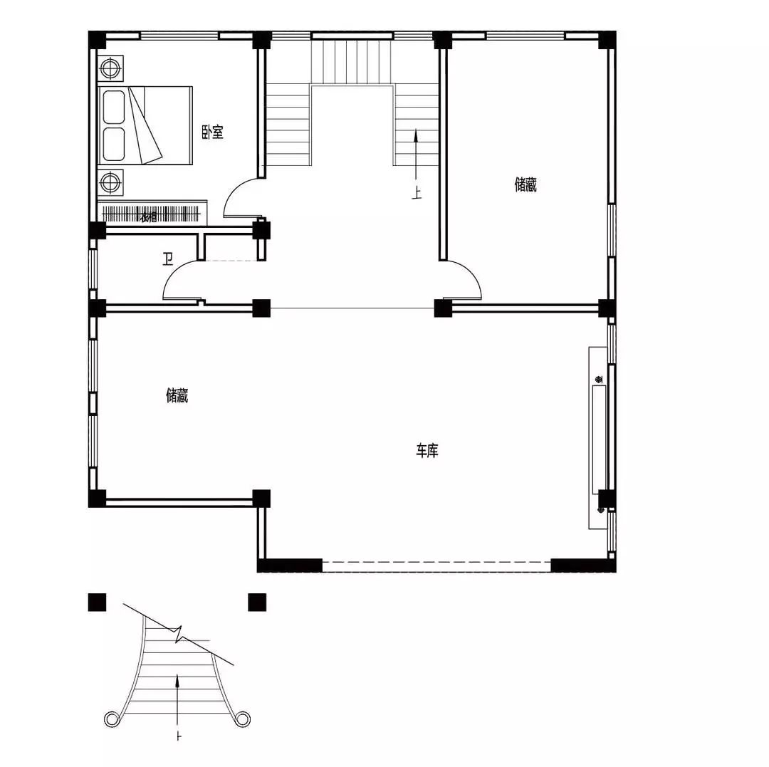
△地下室平面图
根据南方气候特点,设置半地下室,半地下室主要功能为车库,储存功能,农村杂物较多半地下拥有足够空间放置。

△一层平面图
半地下室的设置,使得一层客厅空间,高出围墙栏杆,视线得到解放,全景钢化玻璃窗的设计,坐在客厅沙发品杯香茗,远处风景尽收眼底。

△二层平面图
二层设置四房一厅,超大观景阳台设置,视野开阔。

△三层平面图
三层设置三房一厅,主卧南北贯通,设置大衣帽间卫生间,满足现代人对品质生活的追求。

△四层平面图
四层为多功能厅用途,满足现代人影音,健身需求,大露台、阳台设置周末约上几个亲朋好友来场屋顶烧烤,乡村生活就是如此惬意。

让家的梦想变简单
期待与你合作,欢迎联系我们

方宅公众号
一起寻找最美自建别墅
如果你想盖一所自己的房子
告诉【方宅】你的需求
我们将提供专业设计服务

设计客户微信号
让你的家梦想变简单
国风•观云居——福建陈总五层别墅设计
图纸编号 | FH-5f-25
房屋尺寸 | 30*20
湖北蔡总别墅设计
图纸编号 | FH-4F-45
房屋尺寸 | 17*17
雅园——南宁覃府
图纸编号 | FH-4F-46
房屋尺寸 | 15*20
民国风别墅--漳州张府
图纸编号 | FH-4F-14
房屋尺寸 | 11*14
福州林府——3层中式别墅设计
图纸编号 | FH-3F-26
房屋尺寸 | 16*15
三层欧式轻奢别墅---漳州张府
图纸编号 | FH-3F-40
房屋尺寸 | 13*12
国风雅颂——河南梁府三层新中式别墅
图纸编号 | FH-3F-42
房屋尺寸 | 15*12
4层新中式轻奢别墅
图纸编号 | FH-4F-42
房屋尺寸 | 12*16
五层空中花园别墅---莆田郑宅
图纸编号 | FH-5F-4
房屋尺寸 | 11*14