设计理念
民国风
与传统,与世界,两不隔绝的民国风格建筑,是典型的“中西合璧”,是“西风东渐”特定历史时期中国建筑艺术的缩影。
从遗留的民国风格建筑中,可以看出那种文化气质,精神象征,同时也令人想到传统薪火的传承。

“在一切民国史料的缝隙里,我随处窥见那个时代的气息和质感。”——陈丹青
民国建筑语汇

效果展示

△鸟瞰图
履迹相承 ,融汇中西
以“西为体,中为用”为导向,即西式建造体系+中式表达元素。将中式元素融入西式建造逻辑中,中西合璧,兼容并包,建立起广泛而又极具亲和力的建筑气质。

△正面透视图
运用现代空间设计结合中式建筑元素加以点缀,散发着东方风韵的气质,不失文化韵味。

△人视图

△大门视图

△大门对景

△庭院设计

△门廊

△整体鸟瞰图

△整体鸟瞰图
细部设计
宫殿峥嵘笼紫气,门第相当石鼓默

△抱鼓石
抱鼓石是中国宅门"非贵即富"的门第符号,是最能标志屋主等级差别和身份地位的装饰艺术小品;

△宝相花纹
宝相花纹是隋唐时期出现的一种纹样。早期的宝相花纹形式较简单,多采用双层结构,内层为抽象化的莲瓣纹或牡丹纹,外层穿插其他纹样,并通过米字形的构图原则使得纹样对称、均齐,富有简洁、抽象和空灵之美。

△回纹
回纹是被中国民间称为富贵不断头的一种纹样。它是由古代陶器和青铜器上的雷纹衍化来的几何纹样,因为它是由横竖短线折绕组成的方形或圆形的回环状花纹,形如“回”字,所以称做回纹。

△万字纹
万字纹,又称为万字拐、万不断、万字曲水等,是一种中国传统文化中具有吉祥意义的几何图案。 万字不到头利用多个万字(卍)字联合而成,是一种四方连续图案。 其中“万”字, 寓意吉祥,“不到头”寓意连绵不断,因此万字不到头的意思为吉祥连绵不断 、万寿无疆等含意 。
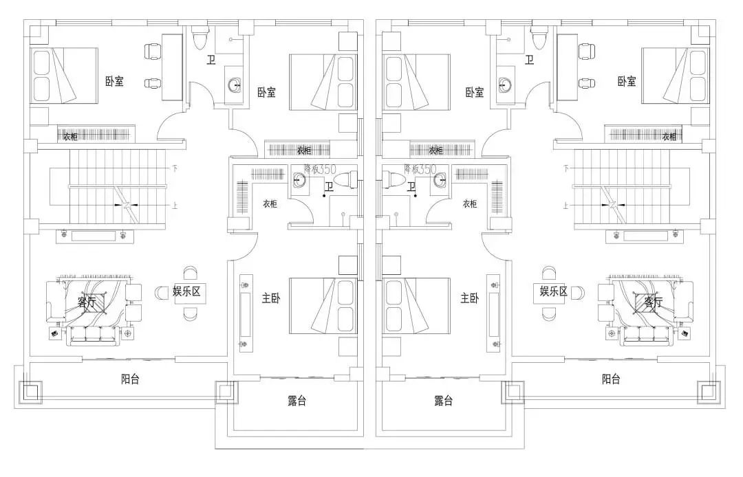
平面功能

△一层平面图

△二层平面图

△三层平面图

△四层平面图

呈现最美乡村自建房
期待与你合作,欢迎联系我们

方宅公众号
呈现最美乡村自建房
如果你想盖一所自己的房子
告诉【方宅】你的需求
我们将提供专业设计服务

设计客户微信号
让你的家梦想变简单
国风•观云居——福建陈总五层别墅设计
图纸编号 | FH-5f-25
房屋尺寸 | 30*20
湖北蔡总别墅设计
图纸编号 | FH-4F-45
房屋尺寸 | 17*17
雅园——南宁覃府
图纸编号 | FH-4F-46
房屋尺寸 | 15*20
民国风别墅--漳州张府
图纸编号 | FH-4F-14
房屋尺寸 | 11*14
福州林府——3层中式别墅设计
图纸编号 | FH-3F-26
房屋尺寸 | 16*15
三层欧式轻奢别墅---漳州张府
图纸编号 | FH-3F-40
房屋尺寸 | 13*12
国风雅颂——河南梁府三层新中式别墅
图纸编号 | FH-3F-42
房屋尺寸 | 15*12
4层新中式轻奢别墅
图纸编号 | FH-4F-42
房屋尺寸 | 12*16
五层空中花园别墅---莆田郑宅
图纸编号 | FH-5F-4
房屋尺寸 | 11*14